07 86 89 31 40
gestion@portanuova.fr
Accueil Client : 11, quai des Célestins 69002 LYON

LISSIEU / Limitrophe LIMONEST - T2 de 53 m² - Balcon- Cave


< Retour

Partager sur

gallery loader
Nouveauté

Appartement 53.23 m² - 2 Pièces - Lissieu 179 000


Description de l'offre Ref V780004087


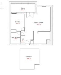
À Lissieu, au cœur d’une jolie commune prisée de l’Ouest lyonnais, venez découvrir ce charmant T2 de 53.23 m² situé au 2 ème et dernier étage, sans ascenseur, d’une copropriété à taille humaine, au sein d’un environnement calme et agréable. Ce bien se compose d’une entrée, d’une cuisine aménagée semi-ouverte sur un séjour lumineux, donnant accès à un balcon de 9 m² avec une jolie vue dégagée, d’une chambre, d’une salle de bain ainsi que de WC séparés. L’appartement bénéficie d’un chauffage individuel au gaz (chaudière récente) et de fenêtres en double vitrage. Situé dans un quartier résidentiel au calme, ce bien offre un cadre de vie paisible tout en restant à proximité des commodités. Une cave de 16m² complète ce bien. Places de stationnement libre. Classe énergie C. Prix de vente : 179 000 €. Les informations sur les risques auxquels ce bien est exposé sont disponibles sur le site Géorisques

Diagnostics de performance énergétique


DPE
DPE

Montant estimé des dépenses annuelles d'énergie pour un usage standard est compris entre 940 € et 1 320 € . Prix moyens des énergies indexés sur les années 2021, 2022 et 2023 (abonnements compris).

Descriptif du bien


Code postal 69380


Surface habitable (m²) 53,23 m²


Surface loi Carrez (m²) 53,23 m²


Nombre de chambre(s) 1


Nombre de pièces 2


Etage 2


Ascenseur NON


Vue Dégagée


Nb de salle de bains 1


Cuisine AMERICAINE


Mode de chauffage Gaz, Gaz de ville


Type de chauffage Radiateur, Radiateur


Format de chauffage Collectif, AUTRE


Interphone OUI


Visiophone NON


Balcon OUI


Terrasse NON


Murs mitoyens 2


Cave OUI


Nombre de parking 1


Surface cave (m²) 16.29


Exposition SUD


Année de construction 1990


Copropriété OUI


Lot n° 18


nombre de lots 20


Quote Part annuelle des charges 1 200 €


Prix de vente honoraires TTC inclus 179 000 €


Prix de vente honoraires TTC exclus 170 000 €


Honoraires TTC à la charge acquéreur 5,29 %


Charges 80 €


Taxe foncière annuelle 556 €


Cette annonce vous intéresse ?


* Champs obligatoires

* : Les informations recueillies sur ce formulaire sont enregistrées dans un fichier informatisé par La Boite Immo agissant comme Sous-traitant du traitement pour la gestion de la clientèle/prospects de l'Agence / du Réseau qui reste Responsable du Traitement de vos Données personnelles. La base légale du traitement repose sur l'intérêt légitime de l'Agence / du Réseau. Elles sont conservées jusqu'à demande de suppression et sont destinées à l'Agence / au Réseau. Conformément à la loi « informatique et libertés », vous disposez des droits d’accès, de rectification, d’effacement, d’opposition, de limitation et de portabilité de vos données. Vous pouvez retirer votre consentement à tout moment en contactant directement l’Agence / Le Réseau. Consultez le site https://cnil.fr/fr pour plus d’informations sur vos droits. Si vous estimez, après avoir contacté l'Agence / le Réseau, que vos droits « Informatique et Libertés » ne sont pas respectés, vous pouvez adresser une réclamation à la CNIL. Nous vous informons de l’existence de la liste d'opposition au démarchage téléphonique « Bloctel », sur laquelle vous pouvez vous inscrire ici : https://www.bloctel.gouv.fr Dans le cadre de la protection des Données personnelles, nous vous invitons à ne pas inscrire de Données sensibles dans le champ de saisie libre.
Ce site est protégé par reCAPTCHA, les Politiques de Confidentialité et les Conditions d'Utilisation de Google s'appliquent.